BYCZF749型液動(方形)封閉式眼鏡閥

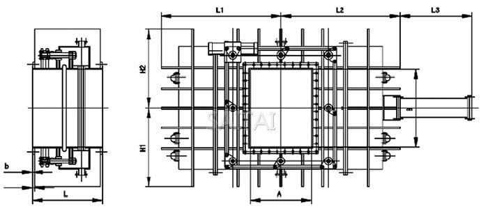
BYCZF749型液動(方形)封閉式眼鏡閥結構圖
主要外形尺寸
| DN | PN(MPa) | L | b | H1 | H2 | L1 | L2 | L3 | 質量 |
| 600×800 | 0.05 | 800 | 34 | 570 | 650 | 1275 | 1275 | 700 | 5236 |
| 0.25 | 34 | 590 | 665 | 1350 | 1350 | 700 | 6040 | ||
| 0.60 | 34 | 620 | 680 | 1390 | 1390 | 700 | 6550 | ||
| 700×900 | 0.05 | 800 | 36 | 680 | 750 | 1375 | 1375 | 800 | 5630 |
| 0.25 | 36 | 690 | 750 | 1475 | 1475 | 800 | 6470 | ||
| 0.60 | 36 | 715 | 760 | 1500 | 1500 | 800 | 6760 | ||
| 800×1000 | 0.05 | 800 | 36 | 760 | 820 | 1525 | 1525 | 900 | 6160 |
| 0.25 | 36 | 770 | 830 | 1650 | 1650 | 900 | 7015 | ||
| 0.60 | 36 | 795 | 760 | 1680 | 1680 | 900 | 7520 | ||
| 900×1100 | 0.05 | 1000 | 30 | 850 | 910 | 1725 | 1725 | 1000 | 6490 |
| 0.25 | 30 | 860 | 920 | 1825 | 1825 | 1000 | 7320 | ||
| 0.60 | 38 | 890 | 950 | 1900 | 1900 | 1000 | 7910 | ||
| 1000×1200 | 0.05 | 1200 | 30 | 970 | 1030 | 2000 | 2000 | 1150 | 6970 |
| 0.25 | 30 | 980 | 1050 | 2100 | 2100 | 1150 | 8060 | ||
| 0.60 | 40 | 1015 | 1080 | 2220 | 2220 | 1150 | 8860 | ||
| 1100×1400 | 0.05 | 1200 | 30 | 1060 | 1160 | 2365 | 2365 | 1400 | 8340 |
| 0.25 | 30 | 1070 | 1180 | 2450 | 2450 | 1400 | 9550 | ||
| 0.60 | 44 | 1105 | 1210 | 2530 | 2530 | 1400 | 9860 | ||
| 1200×1600 | 0.05 | 1400 | 32 | 1250 | 1350 | 2760 | 2760 | 1600 | 10487 |
| 0.25 | 32 | 1275 | 1380 | 2950 | 2950 | 1600 | 11600 | ||
| 0.60 | 48 | 1320 | 1450 | 3120 | 3120 | 1600 | 11920 | ||
| 1400×1800 | 0.05 | 1400 | 34 | 1355 | 1480 | 3160 | 3160 | 1800 | 12500 |
| 0.25 | 34 | 1375 | 1600 | 3230 | 3230 | 1800 | 14050 | ||
| 1500×2000 | 0.05 | 1600 | 34 | 1450 | 1580 | 3600 | 3600 | 2000 | 14310 |
| 0.25 | 34 | 1470 | 1600 | 3665 | 3665 | 2000 | 15500 | ||
| 0.60 | 54 | 1520 | 1650 | 4120 | 4120 | 2000 | 15820 | ||
| 1600×2200 | 0.05 | 1600 | 36 | 1580 | 1630 | 4000 | 4000 | 2280 | 16500 |
| 0.25 | 36 | 1600 | 1750 | 4085 | 4085 | 2280 | 16800 | ||
| 0.60 | 60 | 1650 | 1820 | 4190 | 4190 | 2280 | 17500 | ||
| 1700×2400 | 0.05 | 1600 | 38 | 1730 | 1890 | 4250 | 4250 | 2430 | 17140 |
| 0.25 | 38 | 1750 | 1920 | 4350 | 4350 | 2430 | 18650 | ||
| 0.60 | 62 | 1800 | 1990 | 4530 | 4530 | 2430 | 18950 | ||
| 1800×2600 | 0.05 | 1600 | 40 | 1820 | 2000 | 4600 | 4600 | 2660 | 19050 |
| 0.25 | 40 | 1840 | 2050 | 4700 | 4700 | 2660 | 20400 | ||
| 0.60 | 64 | 1890 | 2110 | 4750 | 4750 | 2660 | 20810 | ||
| 2000×2800 | 0.05 | 2000 | 42 | 1920 | 2100 | 5000 | 5000 | 2880 | 24520 |
| 0.25 | 42 | 1980 | 2200 | 5100 | 5100 | 2880 | 26460 | ||
| 0.60 | 68 | 2030 | 2360 | 5250 | 5250 | 2880 | 27020 |
注:
1.本網頁的BYCZF749型液動(方形)封閉式眼鏡閥結構、結構圖、尺寸、參數等主要性能參數,以及安裝尺寸圖、安裝尺寸表均只適用于參考,詳細CAD圖、安裝圖、以及產品說明書請向賽泰閥門營銷人員索取。
2.由于編輯水平有限,錯誤和不妥之處在所難免,真誠希望您批評指正。
BYCZF749型液動(方形)封閉式眼鏡閥相關產品
下一頁:暖氣溫控閥系列
返回至本系列目錄:特殊閥門